欧美久久久精品,国产又色又粗又黄又爽免费噜,国产日产欧产美韩av,公主高h辣文肉

24小時電話
18980800355

當前位置 :主頁 / 工程案例 / 廠房凈化 / 正文

高效送風口-高效過濾送風口

華銳凈化 / 2020-09-10 07:38:33 / 閱讀
高效送風口-高效過濾送風口高效送風口-高效過濾送風口
高效過濾送風口包括有隔板高效過濾器送風口和無隔板高效過濾器送風口。兩都之間區別在于使用的為有隔板高效過濾器和無隔板高效過濾器。

高效過濾送風口


高效過濾送風口也就高效送風口,一般采用最新技術設計,使氣流分布更加合理、箱體結構簡單可靠,外殼采用寶鋼冷軋鋼板制作,表面經噴塑或烤漆處理,防酸防腐蝕,含靜壓箱,散流板,高效過濾器,與風管的接口可以為頂接或側接。送風口均有良好的氣流組織,達到潔凈區減少死區的目的,保證了凈化效果,是用作新建或改造千級至三十萬級別的潔凈室的終端過濾裝置,是滿足凈化要求的關鍵設備。

高效送風口應用:
1.彩鋼板結構及鋁合金龍骨的潔凈室。
2.因潔凈室的高度受土建高度的限制,而必須采用緊湊型設計方式的潔凈室。
3.部分局部凈化設備。

高效送風口特點:
1.系列高效送風口外殼箱體采用寶鋼優質冷軋鋼板制作,外表面靜電噴塑處理或烤漆處理,配有散流板。
2.高效送風口可作為終端高效過濾裝置直接安裝在潔凈室頂棚處 ,結構緊湊,密封性能可靠,進風方式有側進風和頂進風,法蘭口有方形和圓形兩種結構。
3.有時潔凈室由于受到土建高度限制或必須采用緊湊型設計時,可選用一體化高效過濾器送風口。
4.重量輕、安裝更方便,尤其適合安裝于彩鋼板結構及鋁合金龍骨的潔凈室中。
5.可根據用戶要求加裝調節閥和保溫層。

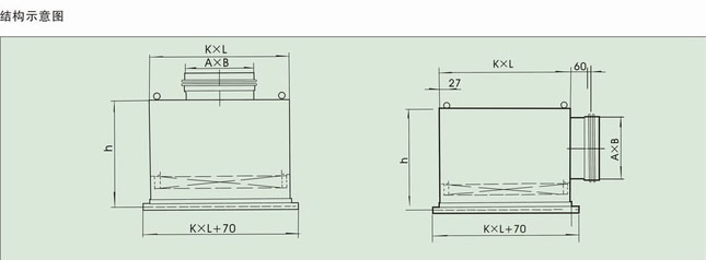
高效過濾送風口結構圖


高效送風口型號及技術參數:

 

型 號
頂端風(側送風)
額定風量
(m3/h)
高效過濾尺寸mm
(寬×高×深)
外形尺寸mm
(寬×高×深)
吊頂開口尺寸mm 進風管尺寸mm
GKF-5IA(5IIA) 500 320×320×220 370×370×500 380×380 200×200
GKF-7IA(7IIA) 700 484×484×150 534×534×500 545×545 320×200
GKF-10IA(10IIA) 1000 484×484×220 534×534×500 545×545 320×200
GKF-10IB(10IIB) 1000 610×610×150 660×660×500 670×670 320250
GKF-12IA(12IIA) 1200 820×600×150 870×650×500 880×660 320×250
GKF-15IA(15IIA) 1500 726×484×220 776×534×500 786×545 400×200
GKF-15IB(15IIB) 1500 630×630×220 680×680×500 690×690 320×250
GKF-15IC(15IIC) 1500 915×610×150 965×660×500 975×670 500×250
GKF-20IA(20IIA) 2000 968×484×220 1080×534×500 1030×545 500×200
GKF-20IB(20IIB) 2000 1220×610×150 1270×660×500 1280×670 630×250
GKF-22IA(22IIA) 2200 945×630×220 995×680×500 1005×690 500×250
GKF-30IA(30IIA) 3000 1260×630×220 1310×680×500 1320×690 630×250

 

一體化高效送風口特點:
1.廣泛使用于10萬級到10級的潔凈室內,應用于藥廠、生物技術、食品飲料廠、微電子行業、半導體行業、光學實驗室。
2.HEPA BOX系列很方便地安裝在T形龍骨中(不需要額外的壓緊裝置),并可方便的與風管(直徑10"或者12")相連接。
3.HEPA BOX系列由專用擠鋁型材邊框以及接口一次成型的鋁板制作而成,進風口內側安裝散流板,并在過濾器出風面裝有過濾器保護網。強度好、高度低、重量輕,方便搬運和安裝。

一體化高效送風口型號及參數:

風量m3/h
初阻力和過濾效率
配套過濾器尺寸(mm)
箱體外形尺寸(mm)
HEPA
ULPA
Ⅰ型
Ⅱ型
Ⅲ型
1000
220Pa99.99%@0.3μm
250Pa99.9995%@0.12μm
600×600×150
565×565×91(液槽)
530×530×80
600×600
1500
915×600×150
880×565×91(液槽)
845×530×80
915×600
2000
1210×600×150
1175×565×91(液槽)
1140×530×80
1210×600

 

高效送風口-高效過濾送風口鏈接地址:

<rt id="oi0qi"><optgroup id="oi0qi"></optgroup></rt>
<tr id="oi0qi"></tr>
<rt id="oi0qi"><optgroup id="oi0qi"></optgroup></rt>
<acronym id="oi0qi"></acronym>
<rt id="oi0qi"><optgroup id="oi0qi"></optgroup></rt>
<acronym id="oi0qi"><optgroup id="oi0qi"></optgroup></acronym>
<tt id="oi0qi"><div id="oi0qi"></div></tt>
<samp id="oi0qi"><object id="oi0qi"></object></samp>
欧美久久久精品 双桥区| 丰城市| 黄浦区| 吉首市| 广元市| 津南区| 循化| 扎兰屯市| 个旧市| 元氏县| 岫岩| 贡嘎县| 佛山市| 东至县| 子长县| 盈江县| 定南县| 虹口区| 贵阳市| 桐柏县| 班玛县| 呼和浩特市| 高碑店市| 桐城市| 定安县| 方正县| 勃利县| 牡丹江市| 宜兰市| 衡水市| 阜平县| 东莞市| 宜都市| 偃师市| 上杭县| 泗洪县| 平乡县| 同心县| 吉林市| 聊城市| 江津市| http://444 http://444 http://444
x
手機
電話
微信
QQ